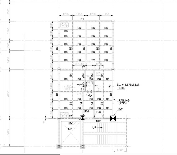
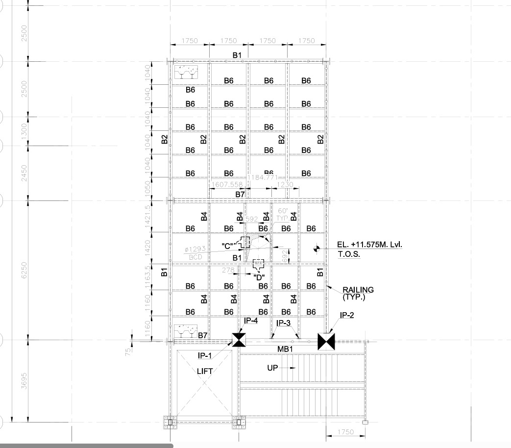
We are currently working on Civil & Structural BOQ extraction using Python. During this process, we are facing the following challenge and request an appropriate solution for where we are stuck:
-
We are able to identify and count the number of beams correctly.
-
However, we are unable to accurately calculate the dimensions of individual beams (such as length, width, and depth) as specified in the drawings/models.
We are looking for guidance or a methods to reliably extract accurate beam dimensions to complete the BOQ calculation.
